00件
最近見た物件
00件
検討リスト
大森エリアの不動産|株式会社KENTY不動産大森店 > (賃貸)路線・駅から探す > JR京浜東北線 > 大森駅 > ちとせマンション > 物件詳細
当物件はKENTY不動産ならクレカにて分割払い可能です!
画像をクリックして視点を操作

| 所在地 | 東京都大田区大森北5丁目4-13 | ||
|---|---|---|---|
| 交通 | |||
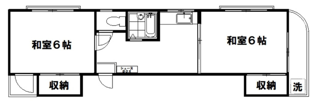
| 間取り/詳細 |
2K K/和室 6.0帖/和室 6.0帖 |
面積/バルコニー面積 | 34.00㎡/- |
| 賃料 | 9万円 | 管理費・共益費 | 3,000円 |
| 敷金/礼金/保証金 | 9万円/9万円/- | 償却/敷引 | -/- |
| 更新料 | 1ヶ月(新賃料) | 敷金積み増し | - |
| 権利金/雑費 | -/- | 駐車場/月額料金 | -/- |
| 保険加入/料金 | 有/20,500円 | 保険名/保険期間 | 損害保険/2年 |
| 保証人代行義務 | 必加入 | 保証会社 | その他 |
| 保証会社詳細 | 初回50%年額10000円 | 向き | 南 |
| 築年月(築年数) | 1989年 3月 (築36年) | 契約期間 | 2年 |
| 種別/構造 | マンション/鉄骨造 | 部屋/所在階/階建 | -/ 4階/ 4階建 |
| 総戸数 | - | 現況/入居可能日 | 空家/2026年01月中旬 |
| 特優賃 | - | 取引態様/賃貸区分 | 仲介/一般 |
| 物件番号 | 99944007 | 取引条件の有効期限 | 2026年01月19日 |
| 設備条件 |
|
||
| 備考 |
当物件の初期費用が知りたい、引越に際して分からない事があれば お気軽にお問い合わせくださいませ。 地域情報など、お部屋の資料では分からない事も丁寧にご説明させていただきます。退去時ルームクリーニング費用・エアコン清掃費借主負担 |
||
| 条件(その他) | あんしんコール24:1万6,500円 鍵交換代:2万7,500円 | ||
| 取扱会社 |
|
||
| QRコード |
このQRコードを読み取ることで、スマホでも物件情報を確認できます。 |
||
※地図上に表示される物件の位置は付近住所に所在することを表すものであり、実際の物件所在地とは異なる場合がございます。
ちとせマンションに関するこだわり条件から探す
大田区の町名から探す
大田区にある駅から探す